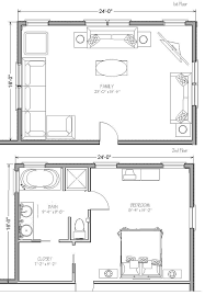
Small Master Suite Layout
Olivia Luz

Luxury Gold Color Polished Chrome Brass Dual Cross Handles Bathroom Vessel Sink Basin Faucet Mixer Taps anf117

Polished Chrome Deck Mounted Bathroom Tub Faucet Dual Handles Telephone Style Hand Shower Clawfoot Tub Filler atf758

Antique Red Copper Brass Dual Ceramic Handles Deck Mounted ClawFoot Bath Tub Faucet Mixer Tap With Hand Shower Spray mna168

2/4/6 Pcs WiFi Smart Switch Universal Breaker Timer Smart Life APP Wireless Remote Control Works Home Accessories Smart Home Hot
We add new designs every week.
Case in point from blogger and designer centsational girl. Welcome back to home plans blueprints site this time i show some galleries about small ensuite layout. Large en suite bathroom facing the bed with walk in closet to the right side. Just because your bedroom is small doesn t mean you can t have some fun with the decor.
Master bedroom with woven wallpaper wall sconces blue and white bedding vintage rug and tufted bench. They range from a simple bedroom with the bed and wardrobes both contained in one room see the bedroom size page for layouts like this to more elaborate master suites with bedroom walk in closet or dressing room master bathroom and maybe some extra space for seating or maybe an office. In the master suite. This master bedroom layout was a fun challenge because we were working in an especially small footprint the apartment unit is in a highly developed part of los angeles explains lincoln.
This information will make you think about master suite floor plan. A beautiful clean cool classic white master bath. A small seating area by the window makes the perfect spot to ruminate while enjoying a cup of coffee at daybreak. Now we want to try to share these some imageries for your perfect ideas choose one or more of these unique images.
RELATED ARTICLE :
This is our small primary bathroom design gallery where you can browse photos or filter down your search with the options on the right. We added information from each image that we get including set size and resolution. Look through bedroom pictures in different colors and styles and when you find a master bedroom design that inspires you. Photo by christopher stark.Making a master suite feel well regal when it s lacking in square footage isn t always easy but again the pure salt designers emphasize that less is more. Interior design by ashley whittaker. Bedroom bathroom house west hills langford bedroom bathroom home spacious floor plan. We like them maybe you were too.
The bold striped walls in this otherwise traditional bedroom defines fun it works well thanks to the extremely limited neutral palette and lack of clutter or fussiness of the room s surfaces. This is another straightforward layout with a singularity of purpose and emphasis on space. We hope you find your inspiration here. We got information from each image that we get including set size and resolution.
Thanks for visiting our small primary bathroom photo gallery where you can search a lot of small primary bathroom design ideas. Inspiration for a small transitional master light wood floor and beige floor bedroom remodel in san francisco with white walls industrial lamps soft fabric patterned pillows webuser 30436859. The information from each image that we get including set of size and resolution. Layouts of master bedroom floor plans are very varied.
RELATED ARTICLE :
Example of a small beach style master medium tone wood floor and brown floor bedroom design in new york with gray walls.View Video For Small Master Suite Layout

View Video Review
Source : pinterest.com
